Av Alberdi y Carrasco

Av Alberdi y Carrasco

Superficie: 2600m²

Lote ubicado en calle Av. Alberdi entre Carrasco y French.
Amplio Local  a la calle, Nave dos pisos en centro de manzana y dos lotes con salida a Carrasco.

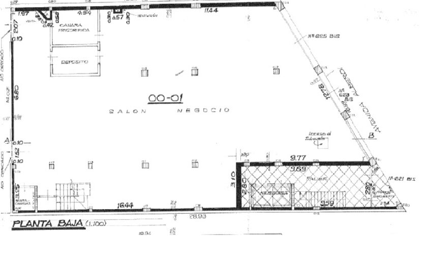
DESCRIPCIÓN:
Local: En PB: Vidriera de 14 mts. Recepción de 10 x 7, salón comercial de 11 x 14, sector de cocina de 6 x 14. En PA: oficina de 5 x 12 con dos baños sectorizados. Depósito de 11 x 6 con baño.
Montacargas
El local es parte de un PH, edificio de 8 pisos.

Nave de dos plantas de 14 x 42 por planta, sector de vestuarios y montacargas, actualmente sectorizado con hornos, dispone de distintos subsuelos a los que se puede acceder por escalera o montacarga, igualmente para la planta alta.

Dos lotes con salida a calle Carrasco, conectados actualmente con el galpón pero no entre sí.
Lote A de 10 x 29, actualmente conectado al galpón.
Lote B de 13 x 29, conectado con el resto de la propiedad a través de una puerta.

ESTADO GENERAL: Muy Bueno

TERRENO TOTAL: 1662
SUP. CUB: 2600 m2. excls
ORIENTACIÓN: Este

Ubicación

Av Alberdi y Carrasco

Relacionado

Bordabehere 3800

  • 131m²

Lote ubicado en calle Bordabehere entre Castellanos y Alsina. DESCRIPCIÓN: TERRENO: 8.66 al frente con[…]

F. Miranda 4200 (Alberdi)

  • 783m²

Terreno ubicado en calle Miranda entre Galicia y Maestro Massa. Dimensiones: frente al este de[…]