Córdoba y Paraguay

U$S 430.000

Córdoba y Paraguay

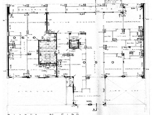
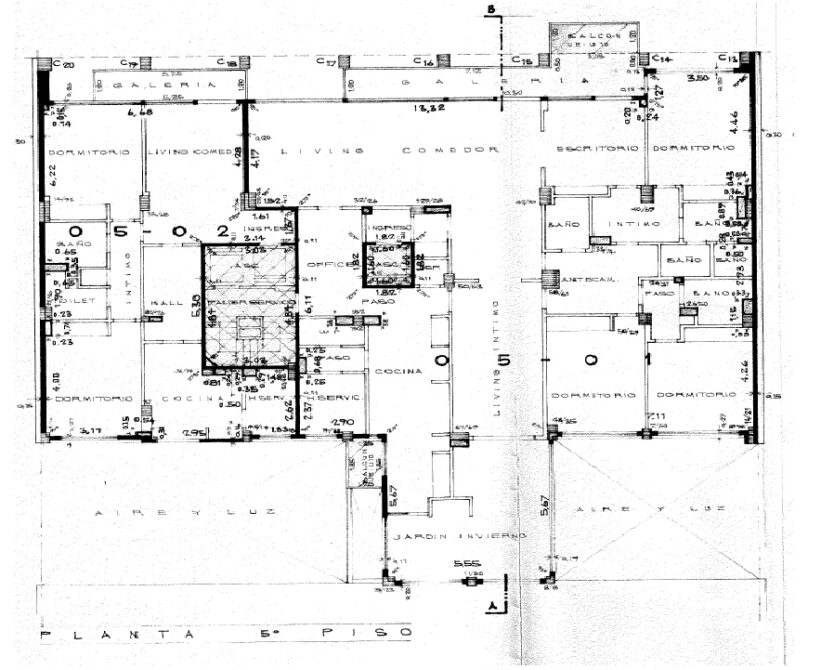
Superficie: 327m²
Dormitorios: 5
Baños: 6
Garages: 2

Piso exclusivo ubicado en calle Córdoba entre Pte Roca y Paraguay. Frente a Plaza Pringles

DEPTOS. POR PISO: 1
INGRESOS: 3
ASCENSORES: 3

DESCRIPCION: Ingreso a amplio living comedor principal con sector de escritorio de 13 x 4 con salida a balcón con vista a la Plaza Pringles, living íntimo o sala de estar con salida amplio jardín de invierno, baño de recepción, cocina comedor, lavadero independiente, dependencias de servicio, 5 dormitorios y 5 baños completos (principal en Suite).
El edificio cuenta con un gran SUM equipado con baños y cocina.
Dos Cocheras y Baulera

ESTADO GENERAL: Para Reciclar
VIGILANCIA: Si

PISOS: Parquet
ABERTURAS: Metálicas
CALEFACCION: Central
AGUA CALIENTE: Central

SUP. CUB: 327 m2. Excls + Balcón
ANTIGÜEDAD: 60 años
ORIENTACIÓN: Norte

Amenities

  • Balcon

Ubicación

Córdoba y Paraguay

Planos

Contactar al agente

There have been some errors with your submission:

Relacionado

Balcarce y Guemes

  • 60m²
  • 2
  • 1

Semipiso ubicado en calle Balcarce entre Güemes y Brown DEPTOS. POR PISO: 2 INGRESOS: 1[…]

Alvear y Santa Fe

  • 42m²
  • 1
  • 1

Departamento al frente ubicado en calle Alvear entre Santa Fe y San Lorenzo DEPTOS. POR[…]