Córdoba y Suipacha

Desde U$S 90.000

Córdoba y Suipacha

Superficie: 80m²
Dormitorios: 2
Baños: 2

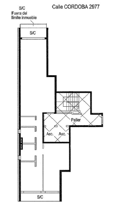
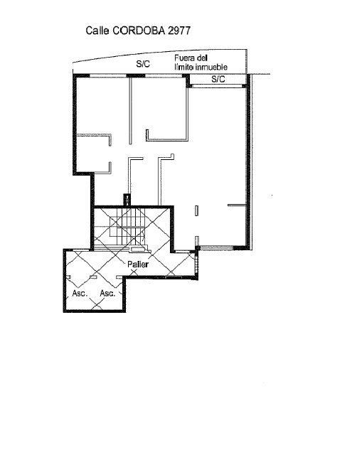
Edificio de PB y 10 pisos ubicado en calle Córdoba entre Suipacha y Riccheri. Entrega 05/2025

DEPTOS. POR PISO: 3
INGRESOS: 1
ASCENSORES: 2

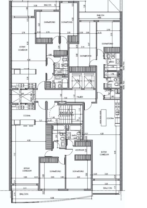
DESCRIPCIÓN: Unidades de 2 dormitorios por piso.
Unidad al frente: Ingreso a living comedor con salida al balcón a la calle y cocina integrada con espacio para lavarropas bajo mesada, dos baños completos, dos dormitorios con placares, el principal con vestidor y baño en suite. Sup. 81 m2 + Balcón

Unidad al frente y contrafrente:
Ingreso a living comedor con salida al balcón a la calle y cocina integrada, lavadero independiente, dos baños completos, dos dormitorios con placares, ambos con salida a balcón al contra frente. Ventilación Cruzada. Sup 80 m2 + Balcón

Unidad al contrafrente:
Ingreso a living comedor con salida al balcón al contrafrente y cocina integrada con espacio para lavarropas bajo mesada, dos baños completos, dos dormitorios con placares.
Sup. 66 m2 + Balcón

ESTADO GENERAL: En construcción.

ORIENTACIÓN: Norte

Amenities

  • Balcon

Ubicación

Córdoba y Suipacha

Contactar al agente

There have been some errors with your submission:

Relacionado

Sarmiento y Santa Fe – Palacio Fuentes

  • 404m²
  • 8
  • 6

Departamento a la calle ubicado en calle Sarmiento esquina Santa Fe. Palacio Fuentes Hall de[…]

Urquiza y San Martin

  • 65m²
  • 2
  • 1

Departamento al frente ubicado en calle Urquiza entre Sarmiento y San Martín Ingreso a living[…]