Morrison y Donado – Kaizen Fisherton

Consultar

Morrison y Donado

Superficie: 96m²
Dormitorios: 3
Baños: 2
Garages: 1

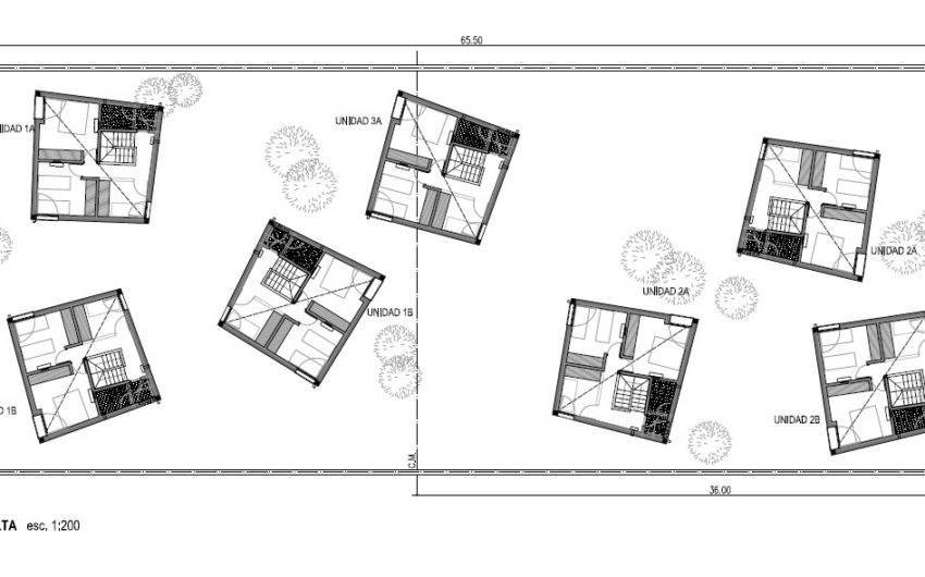
Complejo de vivienda ubicado en calle Morrison y Donado, Fisherton.
Ubicado estratégicamente en el corazón de fisherton. A 20′ del centro y a metros de zona comercial, supermercados y estaciones de servicio. Parada de colectivo en la esquina.

Descripción:  7 dúplex de 96 m2 exclusivos, distribuidos en dos plantas, 10 m2 de terraza en PB y espacio para cochera. 100 m2 aproximados de jardín. Total terreno: 165 m2 aproximados.

Planta baja abierta, amplia y con doble circulación de diseño minimalista con cocina integrada, estar-comedor, toilette y sector de lavado.
Planta alta de uso flexible: 3 dormitorios o 2 dormitorios + 1 escritorio o 2 dormitorios + 1 family room y baño con ante baño.
 

Amenities

  • Asador
  • Cochera
  • Estufas
  • Gas Natural
  • Jardín
  • Termotanque

Ubicación

Morrison y Donado

Contactar al agente

There have been some errors with your submission:

Relacionado

Brassey y Tarragona

  • 300m²
  • 4
  • 3
  • 2

Casa ubicada en calle Brassey entre Tarragona y Gonzalez del Solar. Casa de estilo inglés[…]

Urquiza y España

  • 144m²
  • 3
  • 2

Casa de Planta Alta, ubicada en calle Urquiza entre España e Italia. INGRESOS: 1 DESCRIPCION:[…]