Ov. Lagos y Salta

Consultar

O. Lagos y Salta

Superficie: 44m²
Dormitorios: 1
Baños: 1
Garages: 1

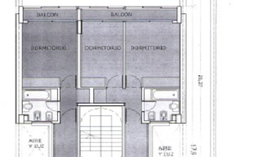
Edificio de 6 pisos a estrenar ubicado en calle Ov. Lagos entre Salta y Catamarca.

Living-comedor de 3 x 4 con cocina semi-integrada con espacio para lavarropa, 1 dormitorio, baño con bañera, balcón frente y contrafrente.  Posibilidad de Cochera.

Pisos: parquet
Sup.  44 m2 excls + 7 m2 Balcón.
Calefacción: calefactor
Agua caliente: calefón

Actualmente se encuentra alquilado

Amenities

  • Balcon
  • Calefón
  • Cochera
  • Estufas
  • Terraza

Ubicación

O. Lagos y Salta

Contactar al agente

There have been some errors with your submission:

Relacionado

Córdoba e Italia

  • 224m²
  • 3
  • 4
  • 2

Piso exclusivo ubicado en calle Córdoba entre Italia y Dorrego. Recepción, amplio living-comedor de 8[…]

Rioja y Corrientes

  • 127m²
  • 3
  • 2
  • 1

Semipiso al frente ubicado en calle Rioja entre Corrientes y Paraguay. DEPTOS. POR PISO: 2[…]